Loading map...

Appartamento - CECINA

Rif: A1526

Cecina, LICENTRO CENTRO
159.000,00 € Vendita
Appartamento
  • 2 Camere
  • 1 Bagni
  • 85 Mq

Descrizione

Appartamento - CECINA

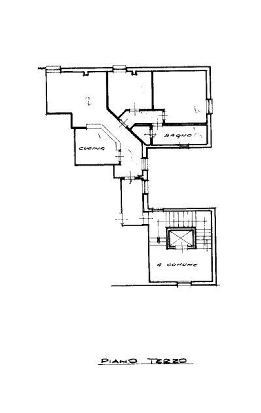
CECINA - In zona centrale, comodissimo a tutti i principali servizi e negozi della zona pedonale proponiamo in vendita questo appartamento Trilocale di circa 85 mq. ubicato all terzo piano di palazzina di poche unità abitative. Entrando nell'immobile tramite disimpegno siamo accolti dalla cucina con angolo cottura e sala pranzo con finestra, ambiente che può essere utilizzato come zona living . Nella zona notte sono presenti la camera matrimoniale, la camera doppia ed il bagno. La proprietà si trova in buone condizioni d'uso, ha utenze autonome ed e' libero da subito. Spese condominiali di circa 900 euro annue. Ottimo come investimento. Si consiglia la visita. rif A1526

Accessori

Garage
Allarme
Aria condizionata
Balconi
Cantina
Arredato
Giardino
Posto auto
Terrazza
Mansarda
Ascensore
Piscina

Altre informazioni

Stanze: 4
Classe energetica: F
Riscaldamento: Autonomo

Planimetrie

0 Commenti

Lascia un commento