Loading map...

Appartamento - ROSIGNANO MARITTIMO

Rif: AM1757E

Rosignano Marittimo, LIROSIGNANO SOLVAY ROSIGNANO SOLVAY
175.000,00 € Vendita
Appartamento
  • 1 Camere
  • 1 Bagni
  • 46 Mq

Descrizione

Appartamento - ROSIGNANO MARITTIMO

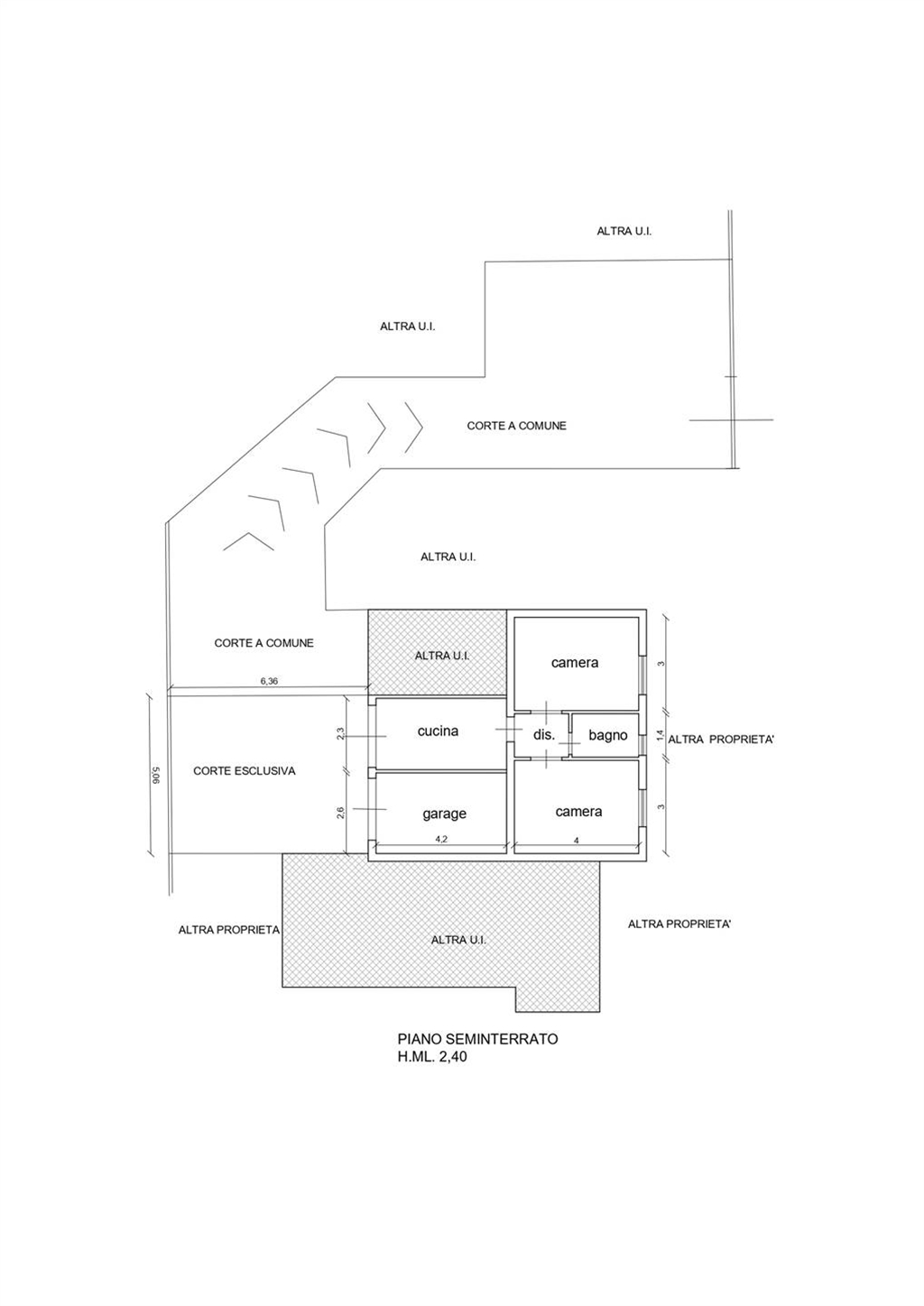
Appartamento indipendente nel seminterrato di una villa con corte privata e posto auto, 50 MT dal mare. Ubicato al piano seminterrato con entrata privata, corte privata, garage e posto auto. Da rimodernare. In zona esclusiva a pochi passi dal porto turistico e dalle spiagge di Rosignano. L'appartamento è composto da zona giorno con angolo cottura, bagno e 2 camere matrimoniali. Gli spazi esterni ampliano la casa e la accompagnano con continuità. L'appartamento si distingue per la sua posizione esclusiva e indipendenza.
Un posto auto privato, corte esclusiva e quella condominiale completano la proprietà, un elemento essenziale e molto apprezzato così vicino alla spiaggia per una gestione pratica e riservata della quotidianità.
Lungomare e il porto turistico di Rosignano a pochi passi, coccola i suoi ospiti con bar, ristoranti, negozi e servizi per gli amanti della vela. Volete di più? Il porto dispone anche di uno yacht club con tutti i suoi servizi per gli amanti della barca.
I suoi spazi esterni regalano l'emozione unica di un grande spazio aperto a pochi passi dal mare. Un'esperienza totale per godere della bellezza rigenerante della natura toscana.

Soluzione perfetta sia come abitazione sia come investimento.
Rif. AM/1757E

Accessori

Garage
Allarme
Aria condizionata
Balconi
Cantina
Arredato
Giardino
Posto auto
Terrazza
Mansarda
Ascensore
Piscina

Altre informazioni

Unità: 5
Stanze: 2
Anno costruzione: 1980
Classe energetica: G

0 Commenti

Lascia un commento